2022年3月21日 星期一

法拍屋|0706停拍.元邦麗湖特區.社區型別墅|國防醫學院.鄰德安商圈|20154↘臺北市內湖區金湖路363巷71號

地址

臺北市內湖區金湖路36371

案號
11020154
法院公告建坪

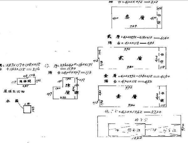
權狀坪數:70.44
使用坪數:100.07坪【主建物:55.37坪;附屬:5.74;公設:9.33坪;車位:0坪;增建:29.63坪】

完工日期
89.5.10
土地總坪數
31.72坪
拍賣底價
依各拍次底價無人買受時,酌減百分之二十估算。
1111/04/13 5946萬】點交→停拍(延緩執行)
1拍 111/07/06 5946萬】點交→停拍(撤回)
2 000/00/00 4757萬】→時間未定

3 000/00/00 3806萬】→時間未定
點交與否
點交
類型

住宅/透天別墅

管理費:
樓層/總層
B1+1+2+3+4/4
停車位:
鄰近學區
麗湖國小、明湖國中
房屋坐向︰坐東北向西南
鄰近交通

捷運-葫洲捷運站。
高速公路-中山高、北宜高、北二高。
快速道路-麥帥橋、堤頂大道、環東大道-南港、民權東路六段-松山機場
(集合北市重大交通樞紐)
火車、高鐵、轉運站-松山火車站、南港車站。
公車路線有28路十分方便,對於上班族也十分便利

商圈介紹
1.位於內湖首善示範重劃區-星雲重劃區。
2.美國在台協會加持,治安更上一層樓。
3.康寧醫院、三軍總醫院,醫療資源充沛。
4.德安商圈繁華軸心、哈拉影城商圈機能佳,鄰近捷運站,享受萬坪運動公園
,靜美環境,國際化前景。
法院筆錄節錄重點內容
1.建物拍定後點交。
2.債務人在場表示建物係其及家屬自住等語;經檢視發現12層間
  有夾層增建,增建與主建物內部相通,無牆壁區隔,且無獨立出
  入口。
3.1樓後方廚房係增建,地下層有夾層增建,設有一房間及一衛
    浴,與1內部相通,地下層本為停車空間,故有獨立出入口,
    可從車道出入
4.12樓間有一夾層空間,供放置物品,無獨立出入口,
5.3樓前方有增建,作為洗、曬衣空間,後方亦有外推、作為臥室使
   用,均無獨立出入口,
6.4樓前、後方均有外推,後方係作衛浴使用,無獨立出入口,
7.頂樓增建係一儲藏室,無獨立出入口;債務人在表示屋內各樓層
    均有漏水問題等語;經檢視發現牆面油漆剝落,1樓天花板亦有些
    許剝落。
8.增建與主建物內部相通;建管處於111118日函復稱增建係分別
  位於夾層、屋頂、陽臺、露臺之垂直增建違章建築,均屬新違章建
  築,限期強制拆除等語。拆除風險請應買人自行注意,拍定後無法
  以權利移轉證書辦理建物登記。
9.本件不動產有抵押權設定,於拍定時,即塗銷抵押權。
10.本件拍賣標的之土地其使用分區為住宅區。
【保證產權清楚】  【銀行代墊尾款】  【保證低於市價】  【案件實地勘查】
【專業代書把關】  【自備二成買屋】  【競價行情分析】  【排除瑕疵事故】

■法拍屋小常識:
法拍屋法律依據為強制執行法,以下簡稱(強)
1.(強)第91條拍賣之不動產無人應買時,執行法院應酌減拍賣最低價額;酌
    
減數額不得逾20% 
   
強)第93條再行拍賣之期日,距公告之日,不得少於十日多於三十日。
2.本案資料為司法院金拍屋法務部行政執行署其他公部門標售公告,轉

  載並整理而成,如有遺誤,應以以上各單位標售公告為準。
3.法拍屋無法入內參觀,但可藉建物平面圖推斷室內格局是否方正。 

多次百萬經紀人,年度法拍案件代標件數王
專業經理人,二十年以上法拍經驗超豐富
政大地政畢,雙證照,專業強眼光超精準
幫助自用者,買到合適又便宜的夢想之家
投資人的臂膀,輕鬆賺正業外的投資外快
有專業團隊,讓您順利達成計劃事半功倍

從進場投標到交屋,全程專業代為處理,讓您省心省力免煩惱
適用政府專案:利率1.54%|最高8成房貸|青年購屋不是夢
保證交易安全:您的擔心|我們的專業讓您得標後不被騷擾
保證價格便宜:精準標價評估競價行情分析|由您決定價格
銀行代墊尾款:銀行低利貸款|輕鬆購屋|租不如買
負責全程點交法院流程處理|陳報狀紙強制交屋事宜:點交vs不點交
您的夢想我們來為您實現

代標三不原則:
全體同仁,恪守『三不原則』
一、不得經手客戶投標保證金及尾款
二、不得巧立名目,賺取約定服務費以外費用
三、不得賺取差價

透明房訊|104法拍屋|全台法院皆有資訊部人員駐點|資訊領先|值得您信賴
■本公司成立於民國75年|全台七處分公司|專營全台法院資訊
■成立最久|規模最大|專業最強|代標三不原則|永續正派經營
■全台千場專業法拍及房地產課程|合法正派經營、誠信專業服務
■全國惟一|佰坪倉庫|保管動產|造冊拍賣遺留物
財欣不動產管理顧問有限公司|統編22857204|交易必須開立發票

如已看中物件,可提前通知『林代書』,債權人和解,銀行履約保證過戶
服務專線:2266-3524 / 2536-7055 
行動電話:0916-326-768 
■信箱︰lin0916326768@gmail.com 

沒有留言: